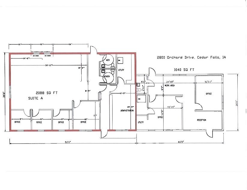
2800 Orchard Drive – Suite A
This office suite contains 2088 square feet. The suite consists of a large reception/work area, four (4) offices, large open area suitable for office partitions or cubicles. The kitchenette area comes with cabinets, a sink and room for the Tenant’s refrigerator. Within the Utility room are an abundance of shelves for storage. The two (20 restrooms are handicap accessible. All flooring is being replaced and the perspective meant will be the first ones to walk on it. The landlord is willing to make changes to the suite to meet the needs of perspective tenants.
PRICE: $3200/mo.
- TYPE: OFFICE SUITE
- SIZE: 2088 SF
- YEAR BUILT: 2008 - Remodeled 2025
- LOCATION: Cedar Falls
Utilities
- TENANT
Interested?
Fill out the form below to learn more about this property!